Do wynajęcia przedstawiam powierzchnię biurową o metrażu 128,5 m2. Budynek zlokalizowany jest przy ulicy Parkowej w Mokronosie Dolnym, tuż przy zjeździe z AOW i przy głównym wjeździe do części miasta Wrocław-Zachód. Z uwagi na szybki dostęp do kluczowych arterii komunikacyjnych aglomeracji wrocławskiej, lokalizacja ta zapewnia doskonałe warunki do prowadzenia działalności biznesowej. W okolicy dostępna jest infrastruktura handlowo-usługowa, m.in. stacje paliw, punkty gastronomiczne oraz usługi codziennego użytku. W pobliżu znajdują się liczne obiekty biurowe, magazynowe i usługowe, co sprzyja prowadzeniu działalności gospodarczej oraz współpracy biznesowej.
OPIS
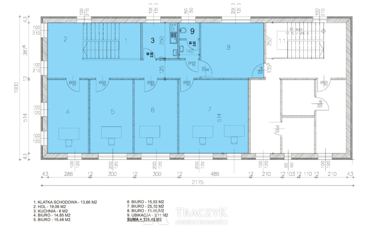
Lokal składa się z pięciu pokoi biurowych zgodnie z załączonym rzutem, klatki schodowej, kuchni, toalety. Przy wejściu na parterze dla najemców dostępna jest również recepcja. Lokal ma osobne wejście oraz alarm strefowy, dzięki czemu jest niezależny i dostępny 24h. Przed budynkiem dla Najemców i Klientów dostępny jest parking, a w przypadku konieczności korzystania z większej liczby miejsc parkingowych do wynajęcia możliwy jest również dodatkowo plac parkingowy z tyłu budynku.
Wszystkie media mają osobne podliczniki, więc Najemcy rozliczają się z faktycznego zużycia.
Do lokalu doprowadzone jest przyłącze światłowodowe.
LOKALIZACJA
Biuro położone w bezpośrednim sąsiedztwie Wrocławia, z szybkim i wygodnym dojazdem do Autostradowej Obwodnicy Wrocławia (A8/S8). Lokalizacja zapewnia sprawną komunikację z centrum miasta, głównymi dzielnicami biznesowymi oraz autostradą A4.
W okolicy dostępna pełna infrastruktura usługowa, m.in. stacje paliw i punkty handlowe. Dogodne miejsce dla firm ceniących łatwy dojazd dla pracowników i klientów oraz dobrą dostępność komunikacyjną bez konieczności wjazdu do centrum Wrocławia.
ZALETY:
Powierzchnia biurowa 128,5 m² – funkcjonalny układ 5 pokoi biurowych
Tuż przy Autostradowej Obwodnicy Wrocławia (A8/S8) – szybki dojazd do Wrocławia i autostrady A4
Wrocław Zachód – bezpośredni wjazd do zachodniej części miasta
Duży parking przed budynkiem dla Najemców i Klientów
Możliwość wynajęcia dodatkowego parkingu z tyłu budynku
Osobne, niezależne wejście do lokalu
Dostęp 24/7 – alarm strefowy
Recepcja w budynku dostępna dla Najemców
Przyłącze światłowodowe
Osobne podliczniki mediów – rozliczenie według faktycznego zużycia
Zaplecze socjalne – kuchnia i toaleta
Otoczenie biznesowe – biura, magazyny i punkty usługowe w pobliżu
Pełna infrastruktura handlowo-usługowa w okolicy
Opłaty
Miesięczny czynsz najmu to 8000 netto PLN
Opłaty wg zużycia
Koniecznie zadzwoń i umów się na prezentację.
Zapraszamy - Traczyk Nieruchomości.
Niniejsze ogłoszenie nie stanowi oferty w rozumieniu przepisów Kodeksu Cywilnego oraz właściwych przepisów prawnych, a dane w niej zawarte mają jedynie charakter informacyjny.
Opis oferty zawarty na stronie internetowej sporządzany jest na podstawie oględzin nieruchomości oraz informacji uzyskanych od właściciela, może podlegać aktualizacji i nie stanowi oferty określonej w art. 66 i następnych K.C.



