Dom w zabudowie szeregowej na kameralnym, zielonym osiedlu w zachodniej części Wrocławia, w dzielnicy Żerniki, z dogodnym dojazdem do centrum miasta.
Prezentujemy funkcjonalny, przestronny skrajny szereg o powierzchni całkowitej 267 m2 usytuowany na zadbanej działce o powierzchni 371m2 z pięknie zagospodarowanym ogrodem i miejscem do wypoczynku.
Idealna propozycja m.in. dla rodziny wielopokoleniowej ceniącej sobie ciszę i spokój oraz swobodę i przestrzeń.
OPIS
Na powierzchnię domu składają się następujące poziomy i pomieszczenia:
Parter o powierzchni całkowitej 100,3 m2 (użytkowej 92,2 m2)
- przestronny salon o powierzchni 32m2 z wyjściem na taras i ogród
- kuchnia połączona z jadalnią o powierzchni ok 20m2
- sypialnia o pow. 12,5 m2
- pokój/gabinet o pow. 7,4 m2
- pomieszczenie gospodarcze/warsztat o pow. 5,5 m2
- łazienka z prysznicem i toaletą
- spiżarnia
- kotłownia z pralnią
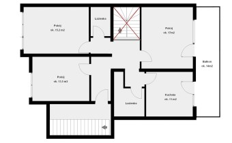
1 piętro o powierzchni całkowitej 88,5 m2 (użytkowej ok. 80,2 m2)
- pokój 1 o powierzchni 17 m2 i wyjściem na balkon o pow. 14m2
- pokój 2 o powierzchni 15,2 m2
- pokój 3 o powierzchni 13,5 m2
- kuchnia o powierzchni 11 m2 z wyjściem na balkon
- łazienka 1 – wyposażona w wannę, umywalkę, toaletę
- łazienka 2 – wyposażona w prysznic, umywalkę, pisuar
Poddasze o powierzchni całkowitej 78,7 m2 (użytkowej ok. 70,4m2)
- pokój 1 o powierzchni 19,5 m2
- pokój 2 o powierzchni 11,5 m2
- kuchnia z jadalnią
- łazienka wyposażona w kabinę prysznicową, dwie umywalki, toaletę
Pięknie zagospodarowany ogród z licznymi krzewami i drzewami owocowymi: maliny, porzeczki, agrest, brzoskwinia, wiśnia, jabłoń, śliwka, winogron, a także wieloletnie zioła. W ogrodzie znajduje się studnia głębinowa z pompą, dzięki czemu można bezpośrednio podlewać ogród. W rogu ogrodu stoi przestronna szopa, mieszcząca wszystkie niezbędne narzędzia. Przy ogrodzie duży, zadaszony taras który pozwala na spokojny wypoczynek, spotkania z rodziną i przyjaciółmi czy grillowanie.
Nieruchomość wybudowana w 1990 roku. W 2012 r. rozbudowana o klatkę schodową zewnętrzną i przebudowana na osobne 3 mieszkania. Dom systematycznie poddawany pracom remontowym i konserwacyjnym. Okna plastikowe trzyszybowe, zewnętrzne parapety granitowe. Dom docieplony styropianem 10cm.
Ogrzewanie gazowe, piec dwufunkcyjny, gaz miejski.
LOKALIZACJA
Dom zlokalizowany w zachodniej części Wrocławia, w dzielnicy Żerniki.
Lokalizacja zapewnia szybki i łatwy wyjazd na obwodnicę Wrocławia, dojazd do lotniska, a także wygodny dojazd do centrum miasta. W okolicy liczne tereny zielone i rekreacyjnie, m.in. Żernicki Park Sportu i Rekreacji, Park Tysiąclecia, tor wrotkarski, skate park, boisko piłkarskie oraz liczne ścieżki rowerowe. W zasięgu 10min spacerem znajduje się przedszkole publiczne o raz szkoła podstawowa, a także sklepy, poczta, przychodnia lekarska i inne usługi.
W pobliżu przystanek autobusowy (linie: 109, 129, 148, 249, 909) oraz dworzec PKP Żerniki.
ZALETY
- zagospodarowana działka z pięknym ogrodem
- taras, liczne miejsca parkingowe przed domem
- bliskość terenów zielonych i rekreacyjnych
- dogodny wyjazd na Obwodnicę Wrocławia
- trzy osobne mieszkania z niezależnymi wejściami
- możliwość uzyskania przychodu z wynajmu części powierzchni
Zadzwoń po więcej informacji i umów się na prezentację.
Zapraszam, Traczyk Nieruchomości
Pomożemy Ci w zakupie tej nieruchomości, sprawdziliśmy jej stan prawny i dokumenty. W odpowiednim czasie nasz notariusz przygotuje umowę notarialną a doradca kredytowy wybierze najlepszy kredyt w banku, wypełni wszystkie dokumenty za Ciebie.
Możesz nam również zlecić Zarządzanie Najmem tej nieruchomości.
Niniejsze ogłoszenie nie stanowi oferty w rozumieniu przepisów Kodeksu Cywilnego oraz innych właściwych przepisów prawnych, a dane w niej zawarte mają jedynie charakter informacyjny.
Opis oferty zawarty na stronie internetowej sporządzany jest na podstawie oględzin nieruchomości oraz informacji uzyskanych od właściciela, może podlegać aktualizacji i nie stanowi oferty określonej w art. 66 i następnych K.C.




Uwaga: mogą wystąpić dodatkowe opłaty za założenie księgi wieczystej oraz ustanowienie hipoteki.