Wrocław, Krzyki, Gaj

Mieszkanie na sprzedaż

Opis nieruchomości

Atrakcyjne, 2-pokojowe mieszkanie na ul. Borowskiej - Krzyki / Gaj


Polecamy mieszkanie o łącznej powierzchni 40 m2 w atrakcyjnej lokalizacji.


OPIS:

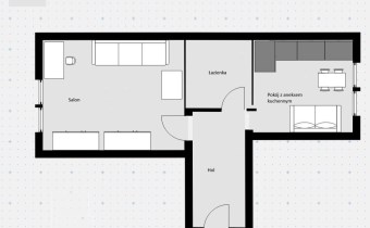
Dwustronne, jasne i przestronne mieszkanie w zadbanym budynku z lat 60-ych.  Składa się z przedpokoju, pokoju z jadalnią i aneksem kuchennym, salonu oraz łazienki z wanną i WC. W przedpokoju i salonie znajduje się duża szafa w zabudowie.

Lokal  wykończony  i umeblowany, gotowy do wprowadzenia się. Znajduje się trzecim piętrze budynku. Do lokalu przynależy piwnica. Dostęp do poddasza z suszarnią i miejscem do przechowywania sprzętów jest dodatkowym atutem.  W pobliżu wejścia do budynku znajdują się miejsca parkingowe dostępne dla mieszkańców. 

Idealne do zamieszkania dla pary, małej rodziny  lub na wynajem. To mieszkanie jest pewną lokatą kapitału !


LOKALIZACJA :

Zaletą mieszkania jest jego lokalizacja, w cenionej przez Wrocławian dzielnicy Krzyki. Bliskość przystanków MPK zapewnia wygodny dojazd do każdej części miasta i do jego centrum. Najbliższe przystanki z liniami autobusami nr 107,112,113,126,127,133,136,143,145,146, 152, 241,249,255,612,K i tramwajowy 8,9,10,11,12,13,14,15,16,18,20,22,23.

Dojazd autem do dworca PKP zajmuje jedynie 7 min, do rynku 15 min.  Osiedle przyjazne i bezpieczne, położone w otoczeniu terenów zielonych. W pobliżu pełna infrastruktura, liczne sklepy, szkoła i przedszkole, dworzec PKP i PKS, Wydział Farmaceutyczny Uniwersytetu Medycznego,  Uniwersytet Ekonomiczny, Ferio Gaj, Wroclavia, Park Skowroni,  Aquapark, kościół, poczta, restauracje, szpital a także ścieżki spacerowo - rowerowe.


ZALETY:

  • atrakcyjna lokalizacja,
  • blisko przystanków MPK,
  • bardzo dobrze skomunikowane z centrum i każdą częścią miasta
  • niski czynsz,
  • zadbany budynek,
  • gotowe do zamieszkania, po remoncie

Zadzwoń po więcej informacji, Zapraszamy na prezentację, Traczyk Nieruchomości

Pomożemy Ci w zakupie tej nieruchomości, sprawdziliśmy jej stan prawny i dokumenty. W odpowiednim czasie nasz notariusz przygotuje umowę notarialną a doradca kredytowy wybierze najlepszy kredyt w banku, wypełni wszystkie dokumenty za Ciebie.

Możesz nam również zlecić Zarządzanie Najmem tej nieruchomości.

Niniejsze ogłoszenie nie stanowi oferty w rozumieniu przepisów Kodeksu Cywilnego oraz innych właściwych przepisów prawnych, a dane w niej zawarte mają jedynie charakter informacyjny.

Jesteś profesjonalnym Pośrednikiem? Dołącz do Nas!

Nota prawna

Opis oferty zawarty na stronie internetowej sporządzany jest na podstawie oględzin nieruchomości oraz informacji uzyskanych od właściciela, może podlegać aktualizacji i nie stanowi oferty określonej w art. 66 i następnych K.C.

Szczegóły oferty

Symbol oferty TRA-MS-5491
Powierzchnia 40,00 m²
Liczba pokoi 2
Piętro 3
Rodzaj budynku blok
Technologia budowlana cegła
Liczba pięter w budynku 3
Stan prawny Własność
Mies. czynsz admin. 444 PLN
Okna PCV
Rok budowy 1960
Woda tak - miejska
Umeblowanie pełne

Lokalizacja

Kalkulator kredytowy

PLN
%
Wysokość raty

Kalkulator kosztów

PLN
PLN
PLN
PLN
PLN
PLN
%
PLN
Podatek od czynności cywilno-prawnych
Taksa notarialna (opłata notarialna)
VAT od taksy notarialnej (opłaty notarialnej)
Wniosek do WKW
VAT od wniosku do WKW
Prowizja agencji nieruchomości
VAT od prowizji agencji nieruchomości
Wypisy aktu notarialnego - około
RAZEM (cena + opłaty)

Uwaga: mogą wystąpić dodatkowe opłaty za założenie księgi wieczystej oraz ustanowienie hipoteki.

Podobne oferty

sprzedane
mieszkanie na sprzedaż - Wrocław, Stare Miasto, Przedmieście Świdnickie

mieszkanie na sprzedaż

Wrocław, Stare Miasto, Przedmieście Świdnickie
1 pokój 27,00 m2 16 851,85 zł/m2
sprzedane
mieszkanie na sprzedaż - Wrocław, Krzyki, Wojszyce

mieszkanie na sprzedaż

Wrocław, Krzyki, Wojszyce
2 pokoje 38,17 m2 13 361,28 zł/m2
sprzedane
mieszkanie na sprzedaż - Wrocław, Fabryczna, Gajowice

mieszkanie na sprzedaż

Wrocław, Fabryczna, Gajowice
2 pokoje 45,02 m2 13 327,39 zł/m2
sprzedane
mieszkanie na sprzedaż - Wrocław, Stare Miasto, Szczepin

mieszkanie na sprzedaż

Wrocław, Stare Miasto, Szczepin
2 pokoje 41,00 m2 11 439,02 zł/m2

Napisz do nas

Proszę wypełnić to pole
Proszę wypełnić to pole
Proszę wypełnić to pole
Proszę wypełnić to pole

Ta strona wykorzystuje pliki cookies w celach statystycznych oraz w celu dostosowania naszych serwisów do indywidualnych potrzeb klientów. Zmiany ustawień dotyczących plików cookie można dokonać w dowolnej chwili modyfikując ustawienia przeglądarki. Korzystanie z tej strony bez zmian ustawień dotyczących cookies oznacza, że będą one zapisane w pamięci urządzenia.

rozumiem